DRUTEX IDEAL NEO MD-FS – Hochleistungs-Kunststofffenster für Sonderverglasung
Das DRUTEX IDEAL NEO MD-FS ist das leistungsstärkste System der IDEAL-Serie und überzeugt durch höchste Energieeffizienz, modernes Design und außergewöhnliche Verglasungsoptionen.
Mit einem Uw-Wert von 0,73 W/(m²K) zählt es zu den bestgedämmten Kunststofffenstern seiner Klasse und erfüllt die Anforderungen für Passivhaus- und Niedrigenergie-Bauten.
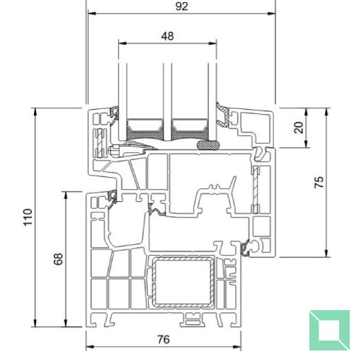
Das 6-Kammer-Profil (76 mm Bautiefe) und das dreifache Dichtungssystem mit Mitteldichtung sorgen für maximale Dichtheit, Langlebigkeit und Schallschutz bis 36 dB. Die B-Klasse-Profile gewährleisten Stabilität und Formbeständigkeit auch bei großen Elementen.
Sein klares, kubistisches Design mit schmalen, symmetrischen Linien fügt sich harmonisch in moderne Architektur ein und ermöglicht großflächige Glaslösungen, die mehr Tageslicht in die Räume bringen.
Eine der herausragenden Eigenschaften des IDEAL NEO MD-FS ist die Möglichkeit, verstärkte Verglasungspakete von 36 bis 68 mm einzusetzen. Dadurch lassen sich besonders hohe Werte bei Wärme- und Schalldämmung erzielen – ideal für Stadtwohnungen, Büros oder Passivhäuser.
Standardausstattung:
Zweikammer-Verglasung Ug = 0,5 W/(m²K)
Swisspacer Ultimate „Warme Kante“ (ohne Aufpreis)
V-Perfect Schweißnaht für unsichtbare Ecken
4 Sicherheitspilzzapfen je nach Flügelgröße
Mikroventilation für kontrollierte Luftzirkulation
Aluminium-Fenstergriff mit Fehlbedienungssperre
Dichtungen in Schwarz oder Grau
Füllung der unteren Beschlagsnut für bessere Dämmung
Über den Fenster-Konfigurator können Sie das DRUTEX IDEAL NEO MD-FS Fenster nach Maß konfigurieren, den Preis sofort berechnen und direkt eine Anfrage oder Bestellung absenden.